The same hallway Bert used to walk down in the GMA opener.
Yes and just about every show behind the scenes at ATV-10 since moving to South Yarra at the Como tower. Hughesy and others regularly did previews in ad breaks before Before the Game throughout the 2000s, Rove and I recall Mal Walden and Helen Kapalos during the Ten News campaign of 2008 ‘Right Here, Right Now’
Seven Cricket:

BBC (close) and ABC (far):
Sky Sports Cricket:

In light of Seven Sydney’s move to Eveleigh, I would be interested to see what the floor plan was at Epping, where not just the news but also Home and Away and The Big Arvo, among other shows, were also produced.
I would like to think that both Seven News and Sunrise shared the same studio space, even after the latter show received a dedicated set in mid-2003.
Are NEP studios still based in Eveleigh?
If you’re talking about where the Olympic and Commonwealth Games in-studio stuff was produced in recent years - yes.
I came across this document a while back which has a good history of the Mobbs Lane site. getContent (nsw.gov.au)
It also includes a rough building floorplan. At the time of the report (2005), Studio C was home to All Saints and Studio E home to Home & Away. Of course this was after the move to Martin Place so I can’t answer where the news programs would have been but it does mention that Studio D was unused at the time, so being a small studio this may have been for some sort of news presentation?
Is The Chase also filmed there?
[/quote]
Are NEP studios still based in Eveleigh?
[/quote]
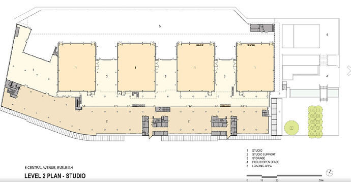
Yes they are. This architecture site has some good drawings of the building.
8 Central Avenue - ATP | PTW Architects | Archello
In the map below, the studios are the boxes labelled “1”. From left to right they are Studios 1 & 2 (NEP) and 3 & 4 (7).
Here is a side view:
Don’t know. Last I heard I think it’s filmed in Moorebank, but I might be wrong.
Yes, using the NEP facilities.
Yes, moved from Brisbane to Sydney around 1999.
You sure? Studio D was last used for C7 Sport if I recall? It was formerly used for Romper Room amongst other things over the years. Was not a large studio by any stretch to house the many sets as used in Home & Away. It was next to the old analogue Presentation area.
News came out of Studio C for many years.
Thanks for pointing that out. It was a typo. The report said Home & Away was Studio E.
7 at the WTC Final:
Miami for the NBA Finals:
My big brother:
BT Sport at the Gabba in 2017:
How big is this microphone? ![]()
Yes I bet not as many screens as you have with all those videos and caps you get!












